Início > MUNÍCIPE > Áreas de Ação/Intervenção > Desenvolvimento Económico > Projetos Cofinanciados > Conclusão do Sistema de Saneamento em Baixa de Hortinhas

Designação do projeto | Conclusão do Sistema de Saneamento em Baixa de Hortinhas
Código do projeto | POSEUR-03-2012-FC-000718
Objetivo principal| Proteger o ambiente e promover a eficiência dos recursos
Região de intervenção | Alandroal – Alentejo
Entidade beneficiária | Municipio de Alandroal
Data de aprovação | 31-01-2017
Data de início | 01-10-2016
Data de conclusão | 30-09-2017
Custo total elegível | 117.066,75 €
Apoio financeiro da União Europeia | FC – 99.506,74 €
Apoio financeiro público nacional/regional | 17.560,01€
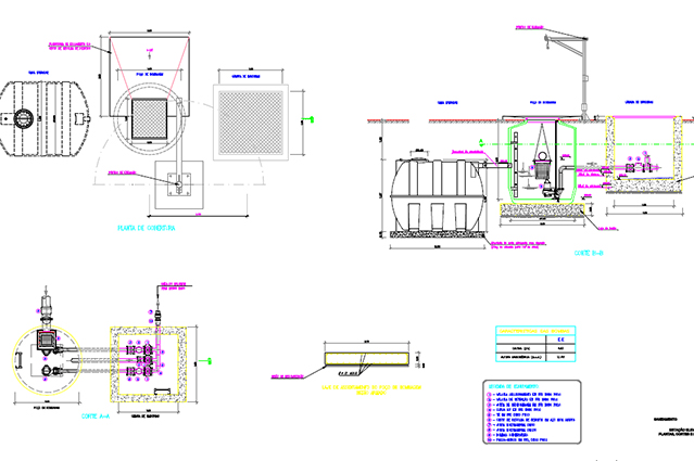
Trata-se de uma operação que têm como objetivo primordial a melhoria da operacionalidade do Sistema em baixa, prevendo a construção de uma nova rede de drenagem a ligar ao sistema de tratamento existente.

| Cookie | Duração | Descrição |
|---|---|---|
| cookielawinfo-checkbox-analytics | 11 meses | O cookie é usado para armazenar o consentimento do usuário para os cookies na categoria "Analytics". |
| cookielawinfo-checkbox-functional | 11 meses | O cookie é definido pelo consentimento do cookie GDPR para registrar o consentimento do usuário para os cookies na categoria "Funcional". |
| cookielawinfo-checkbox-necessary | 11 meses | Os cookies são usados para armazenar o consentimento do usuário para os cookies na categoria "Necessário". |
| viewed_cookie_policy | 11 meses | O cookie é usado para armazenar se o utilizador consentiu ou não com o uso de cookies. Ele não armazena nenhum dado pessoal. |
| Cookie | Duração | Descrição |
|---|---|---|
| qtrans_admin_language | 12 meses | Usada para guardar a linguagem selecionada por utilizador logado. |
| qtrans_front_language | 12 meses | Usada para guardar a linguagem selecionada pelo utilizador. |
| wp-settings-1 | 12 meses | Usado para guardar configurações para utilizadores logados. |
| viewed_cookie_policy | 11 meses | O cookie é usado para armazenar se o utilizador consentiu ou não com o uso de cookies. Ele não armazena nenhum dado pessoal. |
| Cookie | Duração | Descrição |
|---|---|---|
| __utma | 12 meses | Usado para distinguir usuários e sessões. O cookie é criado quando a biblioteca JavaScript é executada e não há cookies __utma. É atualizado sempre que os dados são enviados ao Google Analytics. |
| _ga | 12 meses | Usado para distinguir utilizadores pelo Google Analytics. |
| cookielawinfo-checkbox-analytics | 11 meses | O cookie é usado para armazenar o consentimento do usuário para os cookies na categoria "Analytics". |